Unser neues Projekt
- Steini
- Administrator

- Beiträge: 14330
- Registriert: Di 2. Nov 2010, 15:46
- Wohnort: Herten, i. Westf.
- Kontaktdaten:
Re: Unser neues Projekt
Unbedingt frostsicher gründen!
Welcher Boden steht bei euch natürlich an? Lehmig, sandig?
Wenn der Untergrund aus sandigem Lehm bzw. Sandboden besteht, kannst du die gewählte Gründung umsetzen.
Falls der Untergrund frostempfindlich sein sollte, empfehle ich einen entsprechenden Austausch bis in frostfreie Tiefe oder die Verwendung von Streifenfundamenten.
Welcher Boden steht bei euch natürlich an? Lehmig, sandig?
Wenn der Untergrund aus sandigem Lehm bzw. Sandboden besteht, kannst du die gewählte Gründung umsetzen.
Falls der Untergrund frostempfindlich sein sollte, empfehle ich einen entsprechenden Austausch bis in frostfreie Tiefe oder die Verwendung von Streifenfundamenten.
Ein Gedanke, der richtig ist, kann auf die Dauer nicht niedergelogen werden.
(Otto von Bismarck 1815-1898)
(Otto von Bismarck 1815-1898)
-
Charly
Re: Unser neues Projekt
Steini hat geschrieben:Unbedingt frostsicher gründen!
Welcher Boden steht bei euch natürlich an? Lehmig, sandig?
Wenn der Untergrund aus sandigem Lehm bzw. Sandboden besteht, kannst du die gewählte Gründung umsetzen.
Falls der Untergrund frostempfindlich sein sollte, empfehle ich einen entsprechenden Austausch bis in frostfreie Tiefe oder die Verwendung von Streifenfundamenten.
Bei uns ist der Boden sandig, dann brauche ich doch keine Streifenfundamente oder?
Und gleich noch eine Frage: Ich könnte 4 Foamglasplatten 120cm x 80cm x 16cm günstig bekommen, eignen die sich für die Isolierung zum Backraum?
- Steini
- Administrator

- Beiträge: 14330
- Registriert: Di 2. Nov 2010, 15:46
- Wohnort: Herten, i. Westf.
- Kontaktdaten:
Re: Unser neues Projekt
Dann genügt die Schottertragschicht unter der Bodenplatte.Charly hat geschrieben:... Bei uns ist der Boden sandig, dann brauche ich doch keine Streifenfundamente oder?
Kommt darauf an, um was für ein Plattentyp es sich handelt. Bituminierte sind völlig ungeeignet.Und gleich noch eine Frage: Ich könnte 4 Foamglasplatten 120cm x 80cm x 16cm günstig bekommen, eignen die sich für die Isolierung zum Backraum?
Ein Gedanke, der richtig ist, kann auf die Dauer nicht niedergelogen werden.
(Otto von Bismarck 1815-1898)
(Otto von Bismarck 1815-1898)
-
Charly
Re: Unser neues Projekt
Die sind einseitig Bitumiert, könnte ich nicht bei 16cm die bitumierte Schicht nach unten machen? Auf die Foamglasplatten sollen 64mm Schmottesteine.Steini hat geschrieben:Dann genügt die Schottertragschicht unter der Bodenplatte.Charly hat geschrieben:... Bei uns ist der Boden sandig, dann brauche ich doch keine Streifenfundamente oder?
Kommt darauf an, um was für ein Plattentyp es sich handelt. Bituminierte sind völlig ungeeignet.Und gleich noch eine Frage: Ich könnte 4 Foamglasplatten 120cm x 80cm x 16cm günstig bekommen, eignen die sich für die Isolierung zum Backraum?
- Steini
- Administrator

- Beiträge: 14330
- Registriert: Di 2. Nov 2010, 15:46
- Wohnort: Herten, i. Westf.
- Kontaktdaten:
Re: Unser neues Projekt
Bei 16 cm Stärke könnte man das riskieren. Ich würde jedoch versuchen das Zeug runter zu bekommen. Evtl. mit Brenner und Spachtel.Charly hat geschrieben: Die sind einseitig Bitumiert, könnte ich nicht bei 16cm die bitumierte Schicht nach unten machen? Auf die Foamglasplatten sollen 64mm Schmottesteine.
Ein Gedanke, der richtig ist, kann auf die Dauer nicht niedergelogen werden.
(Otto von Bismarck 1815-1898)
(Otto von Bismarck 1815-1898)
-
kliff
Re: Unser neues Projekt
Hallo Stefan,
viel Erfolg bei deinen Projekt
Bei der Betonplatte würde ich auf das Niveau deines Grundstückes achten,das deine Bodenplatte nicht zu tief wird.(du solltest über das Vorhandene Grundstücksniveau die Betonplatte betonieren..grob sagt man ca .20cm über Ok Geländeniveau) Ob man das dann macht liegt an jeden selber.
Die " Bitumenbeschichtung " würde ich mit mit einer Drahtsäge(oder ähnlichem Gerät ) versuchen von der Platte abzuschneiden bei der Stärke deine Platte, kann man doch einen kleinen Verlust vom Material in Kauf nehmen.Hier im Forum sind doch Jäger vielleicht wissen die ob ein Hornseil sich auch dafür eignet
Frostsichere Aufbau hat Steini schon beschrieben.
LG Volker
viel Erfolg bei deinen Projekt
Bei der Betonplatte würde ich auf das Niveau deines Grundstückes achten,das deine Bodenplatte nicht zu tief wird.(du solltest über das Vorhandene Grundstücksniveau die Betonplatte betonieren..grob sagt man ca .20cm über Ok Geländeniveau) Ob man das dann macht liegt an jeden selber.
Die " Bitumenbeschichtung " würde ich mit mit einer Drahtsäge(oder ähnlichem Gerät ) versuchen von der Platte abzuschneiden bei der Stärke deine Platte, kann man doch einen kleinen Verlust vom Material in Kauf nehmen.Hier im Forum sind doch Jäger vielleicht wissen die ob ein Hornseil sich auch dafür eignet
Frostsichere Aufbau hat Steini schon beschrieben.
LG Volker
- Ottis Eicher
- Feuertycoon

- Beiträge: 1434
- Registriert: Mo 18. Jul 2011, 12:28
- Kontaktdaten:
Re: Unser neues Projekt
Hallo charly,
willkommen bei den
und viel Spaß bei dem neuen Projekt.
Ich würde immer mit Dach bauen und die Bodenplatte auch über
dem Terassenbelag auslaufen lassen, ca. 5cm sollten reichen.
Bei uns geht es nur Frostsicher, mehr kann ich nicht zu der Sache
beitragen.
Wenn du schon Foamglas kaufst, warum mit Bitumen und eine solche
Stärke?
Kliff, was ist ein Hornseil? Kenn ich nicht, doch man lernt nie aus.
willkommen bei den
und viel Spaß bei dem neuen Projekt.Ich würde immer mit Dach bauen und die Bodenplatte auch über
dem Terassenbelag auslaufen lassen, ca. 5cm sollten reichen.
Bei uns geht es nur Frostsicher, mehr kann ich nicht zu der Sache
beitragen.
Wenn du schon Foamglas kaufst, warum mit Bitumen und eine solche
Stärke?
Kliff, was ist ein Hornseil? Kenn ich nicht, doch man lernt nie aus.
Gruß aus dem Sauerland
Ottis Eicher
Ottis Eicher
-
kliff
Re: Unser neues Projekt
Hallo Ottis Eicher,
wie ich es verstanden habe ist ein Hornseil ein Seil womit man Horn schneidet/bearbeitet. Vielleicht hab ich mich mit dem falschen Jäger unterhalten
Ich gehe mal davon aus das er den Unterschied Geweih und Horn kennt
LG Volker
P.S was machen die Holzpilze ?
wie ich es verstanden habe ist ein Hornseil ein Seil womit man Horn schneidet/bearbeitet. Vielleicht hab ich mich mit dem falschen Jäger unterhalten
LG Volker
P.S was machen die Holzpilze ?

- Ottis Eicher
- Feuertycoon

- Beiträge: 1434
- Registriert: Mo 18. Jul 2011, 12:28
- Kontaktdaten:
Re: Unser neues Projekt
Ja da ist es wieder das Fettnäpfchen, alles was man nun schreibt wird gegen einen verwendet,
doch was solls man ist ja ab und an auch an den Späßen beteilig.
Hier in der Gegend haben schon genug Bauern schmerzliche Erfahrungen mit
den Hörnern Ihrer Tiere machen müssen, sogar Tote hat es gegeben und daher
sieht man nicht mehr all zu viel Rotbunte, oder Schwarze mit Hörnern bei uns.
Bei den Fleischrassen sind Sie auch teilweise abgesägt worden, doch das sieht nicht schön
aus. Ich habe lieber diese Tiere mit Hörnern, doch die Geweihten und ihre Tiere
sind noch willkommener und die mit Haderer und Hauer (Haken) sind auch nicht ohne.
So nun genug von dem Zeug.
An die Pilze bin ich noch nicht gekommen, doch die sind dieses Jahr Reif zur Ernte.
doch was solls man ist ja ab und an auch an den Späßen beteilig.
Hier in der Gegend haben schon genug Bauern schmerzliche Erfahrungen mit
den Hörnern Ihrer Tiere machen müssen, sogar Tote hat es gegeben und daher
sieht man nicht mehr all zu viel Rotbunte, oder Schwarze mit Hörnern bei uns.
Bei den Fleischrassen sind Sie auch teilweise abgesägt worden, doch das sieht nicht schön
aus. Ich habe lieber diese Tiere mit Hörnern, doch die Geweihten und ihre Tiere
sind noch willkommener und die mit Haderer und Hauer (Haken) sind auch nicht ohne.
So nun genug von dem Zeug.
An die Pilze bin ich noch nicht gekommen, doch die sind dieses Jahr Reif zur Ernte.
Gruß aus dem Sauerland
Ottis Eicher
Ottis Eicher
-
Charly
Re: Unser neues Projekt
Hallo,
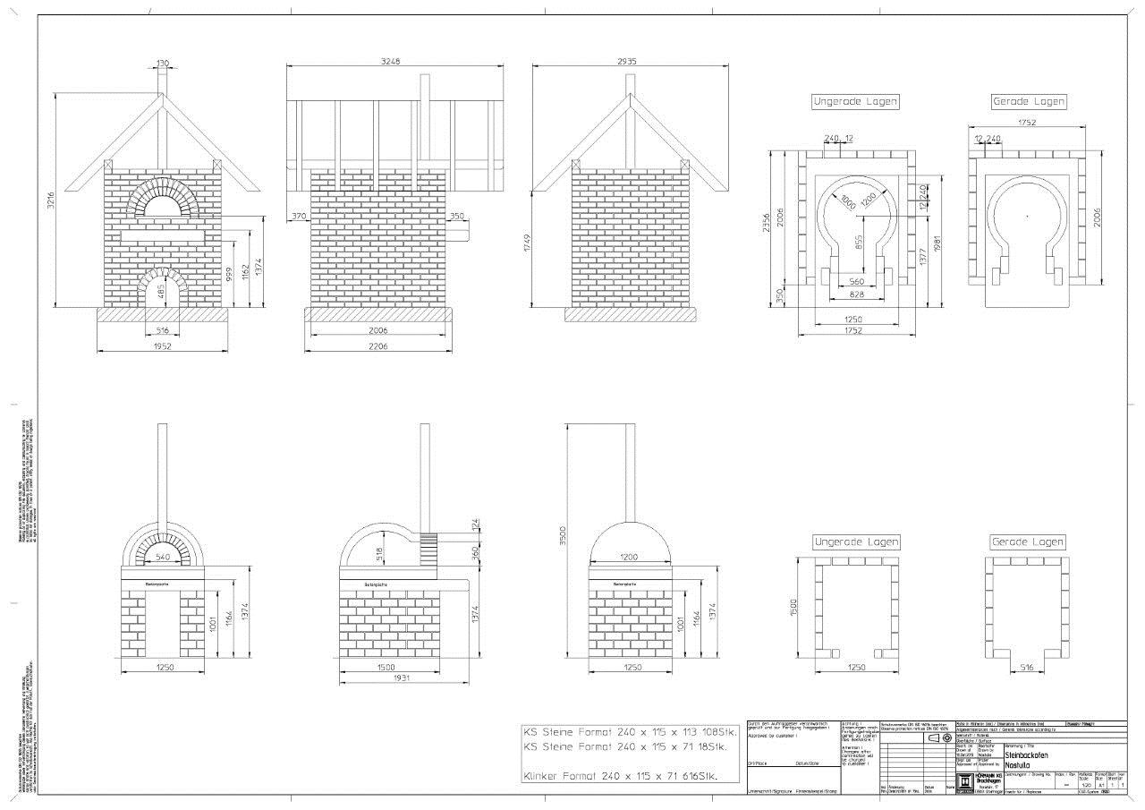
natürlich baue ich mit Dach, dies ist auch auf meiner Zeichnung zu sehen (werde ich nochmal als Foto einstellen, da das PDF die meisten übersehen).
Das Fundamet wird einen Anschluß zu Terasse haben, ich habe meine Planung nochmal überarbeitet und folgende Änderungen berücksichtigt:
[*]die Schamottsteinfläche ist jetzt höher
[*]die vordere Mauer vom Innenmauerwerk ist nicht mehr durchgehend
[*]die Foamglasplatten gehen nur noch bis zum Schamottstein- Bogen
[*]das ganze würde etwas höher
Bei dem Foamglas ist es halt so, dass ich 2,5m² für 80€ bekommen könnte.......
Über weiter Anregungen freue ich mich sehr
Gruß
Charly
natürlich baue ich mit Dach, dies ist auch auf meiner Zeichnung zu sehen (werde ich nochmal als Foto einstellen, da das PDF die meisten übersehen).
Das Fundamet wird einen Anschluß zu Terasse haben, ich habe meine Planung nochmal überarbeitet und folgende Änderungen berücksichtigt:
[*]die Schamottsteinfläche ist jetzt höher
[*]die vordere Mauer vom Innenmauerwerk ist nicht mehr durchgehend
[*]die Foamglasplatten gehen nur noch bis zum Schamottstein- Bogen
[*]das ganze würde etwas höher
Bei dem Foamglas ist es halt so, dass ich 2,5m² für 80€ bekommen könnte.......
Über weiter Anregungen freue ich mich sehr
Gruß
Charly
- Dateianhänge
-
- Steinbackofen_1.jpg
- Der neue Plan
- (124.35 KiB) 185-mal heruntergeladen
-
Steinbackofen_1.pdf- und hier nochmal der neue Plan im PDF- Format
- (146.77 KiB) 525-mal heruntergeladen
-
- So schaut es im Moment aus
- P1000421.jpg (129.67 KiB) 6577 mal betrachtet
Wer ist online?
Mitglieder in diesem Forum: 0 Mitglieder und 0 Gäste