Räucherofen - Sparvariante -
- Iceman
- Feuertycoon

- Beiträge: 1553
- Registriert: Di 9. Aug 2011, 19:38
- Wohnort: Bad Düben
- Kontaktdaten:
- ar1
- Feuertycoon

- Beiträge: 825
- Registriert: Do 8. Nov 2012, 22:17
Re: Räucherofen - Sparvariante -
Hallo Lutz,
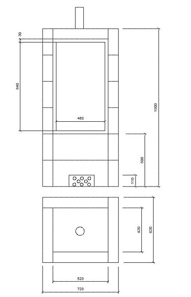
kannst du den Ofen bitte einmal in der Totalen einstellen?
Beim SBO habe ich noch Steine über und überlege, ob ich noch einen Räucherofen anfüge.
Leider habe ich keine Ahnung, wie der Ofen so aufgebaut ist.
Gruß
Ari
kannst du den Ofen bitte einmal in der Totalen einstellen?
Beim SBO habe ich noch Steine über und überlege, ob ich noch einen Räucherofen anfüge.
Leider habe ich keine Ahnung, wie der Ofen so aufgebaut ist.
Gruß
Ari
Gruß
Adrian
_________________________________________________________
Nimm das Leben nicht zu ernst, du kommst da eh nicht lebend raus!
Adrian
_________________________________________________________
Nimm das Leben nicht zu ernst, du kommst da eh nicht lebend raus!
-
BackFisch
Re: Räucherofen - Sparvariante -
Hallo Adrian,
sorry, ich habe die Frage wohl verpeilt....
Hier noch zwei Bilder. Der Ofen steht unter dem Überdach meines Gartenhäuschens. Da ist sehr
wenig Platz für Fotos... Mit den besten Grüßen aus der Altmark
Lutz
sorry, ich habe die Frage wohl verpeilt....
Hier noch zwei Bilder. Der Ofen steht unter dem Überdach meines Gartenhäuschens. Da ist sehr
wenig Platz für Fotos... Mit den besten Grüßen aus der Altmark
Lutz
- ar1
- Feuertycoon

- Beiträge: 825
- Registriert: Do 8. Nov 2012, 22:17
Re: Räucherofen - Sparvariante -
Hi Lutz,
danke für die Bilder!
Leider macht momentan das Wetter nen Strich durch die Rechnung.
Schließlich ist auch auf dem SBO noch nicht mal ein Dach drauf ;-(
Gruß
Adrian
danke für die Bilder!
Leider macht momentan das Wetter nen Strich durch die Rechnung.
Schließlich ist auch auf dem SBO noch nicht mal ein Dach drauf ;-(
Gruß
Adrian
Gruß
Adrian
_________________________________________________________
Nimm das Leben nicht zu ernst, du kommst da eh nicht lebend raus!
Adrian
_________________________________________________________
Nimm das Leben nicht zu ernst, du kommst da eh nicht lebend raus!
- Ottis Eicher
- Feuertycoon

- Beiträge: 1434
- Registriert: Mo 18. Jul 2011, 12:28
- Kontaktdaten:
Re: Räucherofen - Sparvariante -
Hallo Räuchergemeinde,
ich wollte kein neues Thema aufmachen hier würde
es glaube ich passen.
Wir hatten gestern Besuch und durch zufall stellte sich
heraus, der Herr hat nen R-Schrank am Bodensee erstanden
Soll 1,8 m Hoch sein und aus einem alten Haus kommen
Wäre eine Betonvariante und Türe mit Filzdichtung. Er will ihn
ins Haus stellen und ich habe Ihm geraten mit dem schwarzen
Mann zu sprechen. Sieht er kein Problem drin. Sein Bekannter
darf zu Hause nicht mehr so viel Räuchern und da wollte er
einen Schrank haben und sich so die Kunst des Räuchern
anlernen. Kurz und gut ich werde Ihm helfen das Ding aufzustellen
und mich an diversen Veruschen beteiligen. Man lernt ja nie
aus.
Werde euch auf dem laufenden halten.
ich wollte kein neues Thema aufmachen hier würde
es glaube ich passen.
Wir hatten gestern Besuch und durch zufall stellte sich
heraus, der Herr hat nen R-Schrank am Bodensee erstanden
Soll 1,8 m Hoch sein und aus einem alten Haus kommen
Wäre eine Betonvariante und Türe mit Filzdichtung. Er will ihn
ins Haus stellen und ich habe Ihm geraten mit dem schwarzen
Mann zu sprechen. Sieht er kein Problem drin. Sein Bekannter
darf zu Hause nicht mehr so viel Räuchern und da wollte er
einen Schrank haben und sich so die Kunst des Räuchern
anlernen. Kurz und gut ich werde Ihm helfen das Ding aufzustellen
und mich an diversen Veruschen beteiligen. Man lernt ja nie
aus.
Werde euch auf dem laufenden halten.
Gruß aus dem Sauerland
Ottis Eicher
Ottis Eicher
Wer ist online?
Mitglieder in diesem Forum: 0 Mitglieder und 1 Gast