erstmal wünsche ich Euch einen schönen 4. Advent.
Jetzt, wo alle Außenbaustellen ruhen, habe ich wieder etwas an der Planung meines Ofens
weiter gearbeitet und hätte gerne wieder Eure Meinung gehört.
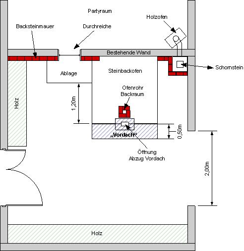
Es wird so sein, dass der Ofen an der Rückseite zu meinem Partyraum zu stehen kommt.
Der Raum, in dem der Ofen stehen soll, ist an drei Seiten geschlossen. Die vierte Seite wird
ein 2m breite Öffnung haben. Ich habe eine Skizze dazu angefügt. Die Seite mit der Öffnung
wird im ganze wohl nicht 100% Luftdicht werden. Diese Seite wird oberhalb der Mauer mit
durchsichtigen Wellplatten geschlossen, so dass Licht in diesen Raum kommt. Der Aufbau des
Raumes nach oben erfolgt durch Hlzbalken und Abdeckung mit Blech-Sandwichplatten. Da beim
Ofen während dem Heizen Rauch aus der Tür austritt, habe ich mir überlegt, wie man den Rauch
am besten abfängt bzw. aus dem Raum bringt. Der Ofen bekommt kein eigenständiges Dach.
Mein Gedanke war, ein kleines Vordach (ca. 50cm tief, so breit wie der Ofen, gewölbt) über die
Tür des SBO anzubringen (lila in der Skizze). Dieses Dach soll einen eigenständigen Kamin als
Abzug erhalten. Denkt Ihr, da bringt etwas, um so den Rauch möglichst abzufangen oder wäre
es besser, das Vordach komplett nach unten zu mauern (in der Skizze leicht angedeutet, ähnlich
wie im Film "Der Ofenbauer - der letzte seines Standes)? Oder bringt so etwas gar nichts?
Danke für eure Antworten.
Lg Andreas

